Е--оселя!Продажа 2к 77м Винграновского 2 ЖК Вудстория без комиссии
- 17/11/2025
- Украина, Киев и область
- Продажа квартир
- Продам, предлагаю - частное лицо
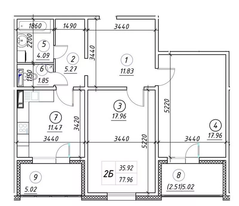
Продам 2-х квартиры Винграновского 2 77м ЖК «Вудстория» ДБК-4, Дарницкий р-н, сдан, комплекс состоит из 4 домов, жилой 25-этажный 3 секционный дом сдан, утепленный минеральной ватой (вентилированный фасад HostRock), серия АППС- люкс полной внутренней отделкой квартир (обои, сантехника, межкомнатные двери, радиаторы, счетчики горячей и холодной воды, счетчик электроэнергии, металлическая входная дверь, металлопластиковые окна с двухкамерным стеклопакетом, розетки, выключатели), прекрасное расположение в парковой зоне Киева, около парка «Партизанской Славы», парка «Воинов Интернационалистов», АТБ-Маркет, минимаркеты, аптеки, детские сады, школы, поликлиника №2, ближайшая станция метро «Красный Хутор» 15 мин пешком, есть другие варианты квартир, помещений от застройщика Киев и пригород, Без комиссии, Переуступка. Цену , этаж и планировку уточняйте по телефону, можно на вайбер, возможна рассрочка в строящихся домах, ипотека по программе Е-Оселя.
2 к 77, 96/36/12
Евгений
Покупайте безопасно
Новые объявления продавца
-
Продам 2к 72м, Коноплянська 22 ЖК "Навігатор" 2
82 000 USD $ -
Пропонується 1к 42м Коноплянська 22а ЖК Навігатор 2
52 000 USD $























